Друзья, ловите объект, который редко выходит на рынок. Это не просто «стены» в центре. Это готовый бизнес-инструмент.
Я не буду вам рассказывать сказок про «уютный уголок». Это серьезная коммерческая площадь в сердце города. Тот случай, когда локация работает на вас 24/7.
📍 Локация, которая не требует объяснений:
Администрация города и области — ваши соседи, офисы крупнейших Энергетических, ресурсо-добывающих, перерабатывающих компаний, торговые и спортивные центры и клубы, рестораны и кафе, Бизнес-центры, бульвар Гагарина, топовые рестораны, гостиницы, музеи. Транспортная развязка сюда ведет из любого района, а клиентам и партнерам не нужно объяснять, как к вам проехать — они и так здесь бывают каждый день.
🏢 Что по активу:
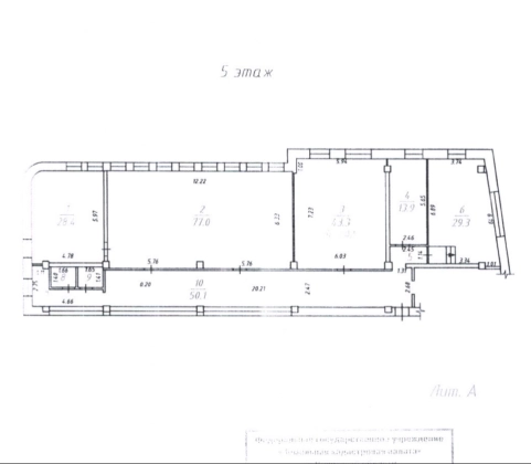
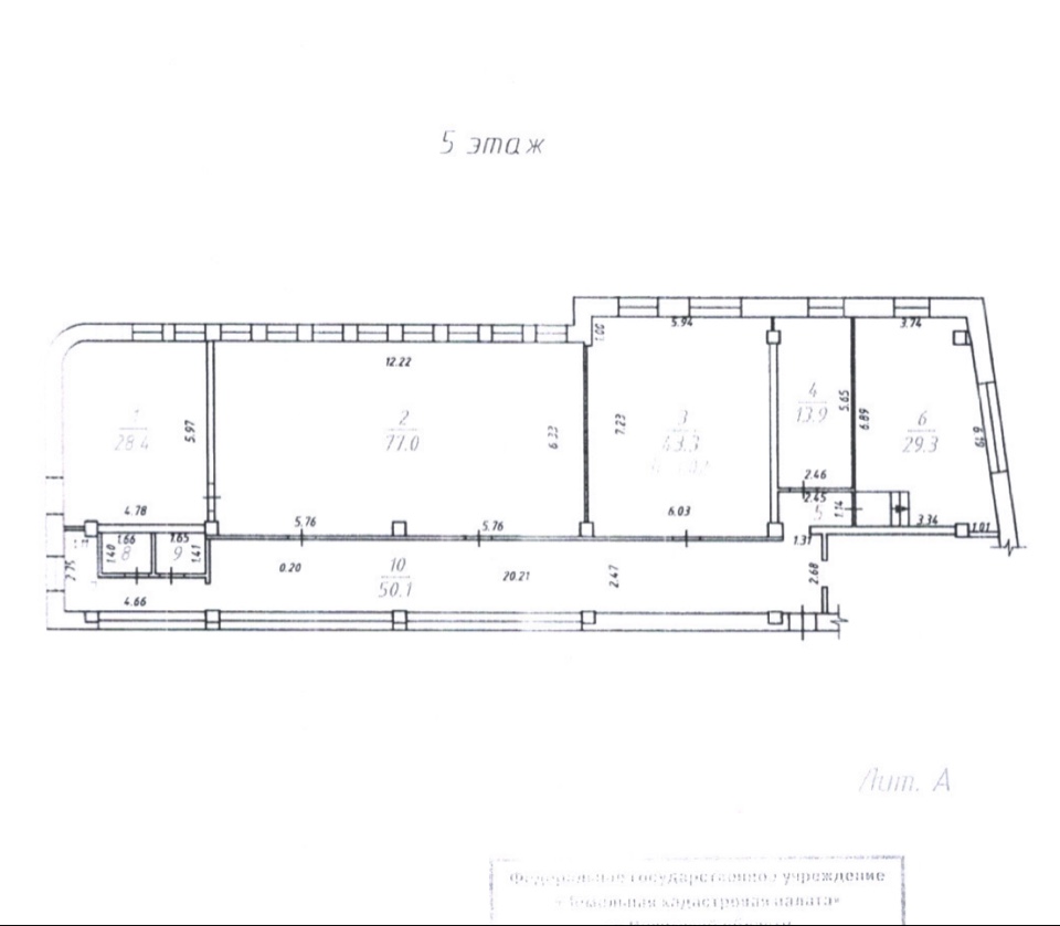
Общая площадь — 667 кв.м.
Это два этажа — 4-й (409 м²) и 5-й (258 м²). А хотите ПОЭТАЖНО!
Продаю как единым лотом, так и по отдельности. Хотите 4-й под себя, а 5-й оставить в аренду? Пожалуйста. Гибкость — это тоже про деньги.
💡 Состояние и фишки:
1. Планировка — классическая кабинетная. Сейчас это «золотой стандарт» для юристов, консультантов, клиник и девелоперов. Но если вы фанат open space — переделать не вопрос.
2. Входная группа и безопасность. Два пассажирских лифта до 4-го этажа (очередей не бывает) + две пожарные лестницы. Контролируемый доступ с охраной. Ваши сотрудники и клиенты будут в безопасности, а документы — в сохранности.
3. Санузлы. На каждом этаже отдельные мужской и женский. Без очередей и конфликтов.
4. Терраса. Это вообще отдельный бонус. На 5-м этаже есть большая терраса. Для тех, кто понимает: переговорная на свежем воздухе, зона отдыха для сотрудников или расширение площади (есть возможность увеличить само помещение за счет нее до 170 м²). Это делает объект идеальным под премиальный мини-отель или апартаменты.
🚗 Парковка:
Стихийная есть всегда. Но главное — у объекта есть собственная большая парковочная зона. В центре Иркутска место для машины — это уже часть арендной ставки. Здесь вы закрываете вопрос с авто.
💰 Математика для инвестора:
Если вам нужен пассивный доход, а не головная боль, я даю вам «въезжающего» арендатора.
Текущая ставка — от 1000 руб/м² + коммуналка.
Считайте сами: 667 м² * 1000 руб = 667 000 руб/мес. чистого дохода до налогов. Это стабильный денежный поток, который вы покупаете вместе с квадратными метрами. Коммунальные платежи оплачивает арендатор.
📌 Кому это нужно:
· Компаниям, которые переросли свои текущие площади и хотят въехать в локацию уровня «здесь сидят первые лица».
· Инвесторам, кто ищет актив с действующим арендатором и понятной доходностью. Не нужно думать, что делать с помещением — вы включили и забыли.
· Бизнесу с высокими требованиями. Клиника? Отлично, санузлы и планировка позволяют. Мини-отель? Терраса и два отдельных этажа дают privacy для гостей.
Звоните в любое время.
Покажу на планах, проведу по объекту, познакомлю с арендатором (если он вам нужен) или помогу подготовить помещения под ваши задачи. Центр Иркутска — это про престиж и ликвидность. Не упустите возможность купить эту ликвидность с готовой доходностью.
P.S. Если вы сейчас платите аренду где-то рядом — посчитайте, сколько вы уже отдали собственнику. Не проще ли купить свой актив?



















































